Descripción
¡Boaz Inmoboutique vende chalets de obra nueva en Fuenlabrada!
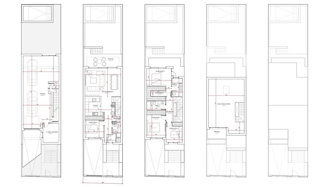
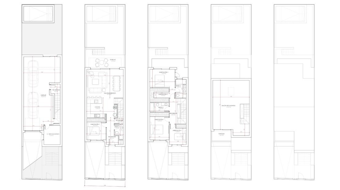
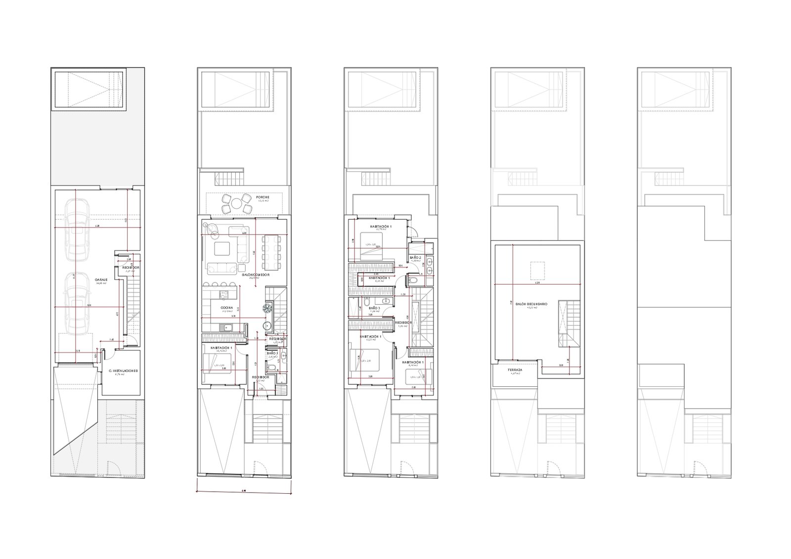
Se venden dos exclusivas viviendas de obra nueva, diseñadas con materiales de primera calidad y pensadas para ofrecer el máximo confort, eficiencia y diseño. Con posibilidad de personalización de la vivienda.
Cada chalet cuenta con una distribución moderna y funcional, con estancias amplias, mucha luz natural y acabados de alto nivel.
Características principales:
- 4 dormitorios.
- Salón comedor amplio y luminoso.
- Cocina amueblada con mobiliario alto y bajo (varias opciones de color).
- 3 baños completos con grifería de primera calidad, ducha extraplana y lavabos suspendidos.
- Armarios empotrados revestidos interiormente.
- Terraza y/o jardín privado con piscina.
- Plaza de garaje.
Calidades de las viviendas:
- Fachada combinada de mortero monocapa y ladrillo visto.
- Suelos de gres porcelánico imitación madera.
- Carpintería interior lacada en blanco.
- Ventanas de aluminio con rotura de puente térmico y doble acristalamiento.
- Puerta de acceso blindada.
Eficiencia y confort:
- Certificación energética A, la mas alta del mercado.
- Sistema de aerotermia de alta eficiencia para calefacción, refrigeración y ACS.
- Suelo radiante y refrescante en toda la vivienda.
- Persianas térmicas con aislamiento.
- Iluminación LED empotrada en zonas clave.
Instalaciones y tecnología:
- Videoportero con monitor en cada vivienda
- Preinstalación para TV en dormitorios y terrazas
- Tomas eléctricas e iluminación muy por encima de los estándares mínimos
¡Para más información, contáctenos!
Dirección: Calle de la Cruz Roja
Ciudad: Fuenlabrada
Código postal: 28004
País: España
Abrir en Google Maps

























